Osiedle Cysterskie

OSIEDLE CYSTERSKIE

Inwestycja Premium

Osiedle Cysterskie

Gdzie historia spotyka się z naturą.

Osiedle Cysterskie powstaje w wyjątkowej lokalizacji — na obrzeżach historycznego Włocławka, w miejscu gdzie średniowieczne dziedzictwo cysterskie łączy się z malowniczymi terenami nadwiślańskimi. Zaledwie 300 metrów dzieli inwestycję od brzegów Wisły, a pięciominutowy spacer prowadzi do Rezerwatu Przyrody Kulin — jednego z najcenniejszych przyrodniczo miejsc regionu.

To lokalizacja stworzona dla rodzin ceniących spokój i bliskość natury, a jednocześnie szybki dostęp do miejskiej infrastruktury. Szkoła podstawowa i przedszkole znajdują się w odległości 1 km, szkoły średnie — od 1,2 do 1,8 km. W pobliżu działa nowo otwarte Powiatowe Centrum Zdrowia, a komunikacja miejska zapewnia wygodne połączenie z centrum.

Na miłośników historii czeka monumentalna Katedra Wniebowzięcia NMP — perła późnego gotyku, położona niespełna 1,5 km od osiedla. Tutaj codzienne życie toczy się w rytmie natury, z dala od miejskiego zgiełku, lecz w zasięgu wszystkiego, czego potrzebujesz.

Etap 1

6 domów jednorodzinnych w zabudowie bliźniaczej

Każdy dom posiada powierzchnię użytkową 134 m² z wiatami gospodarczymi.

ul. Suszycka, Włocławekdziałka nr 128 KM11woj. Kujawsko-Pomorskie
Oferta

Dostępne domy

Obróć telefon poziomo aby zobaczyć pełną tabelę
DomPow. (m²)Pow. działkiCena lokaluCena/m²Historia cenStatusProspekt
Ładowanie danych...
Dokumentacja

Rzuty lokali

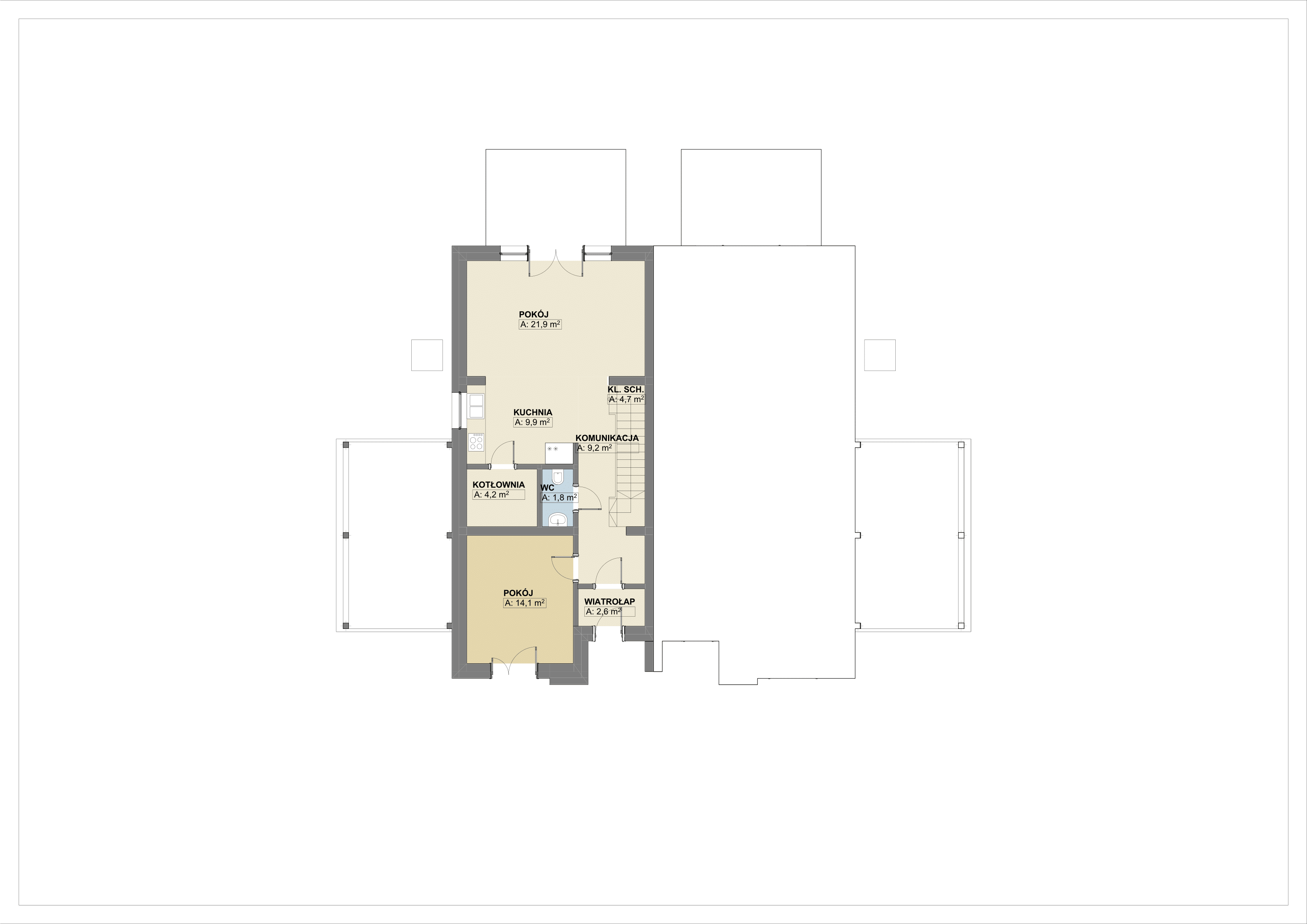
Każdy dom składa się z parteru i piętra. Kliknij obrazek, aby powiększyć.

Rzut parteru - lokal lewy (1A, 2A, 3A)

Parter

Lokal lewy (1A, 2A, 3A)

Parter
lewy
Piętro
lewy
Parter
prawy
Piętro
prawy
Lokalizacja

Osiedle Cysterskie

ul. Suszycka, Włocławek, województwo Kujawsko-Pomorskie

Miejsce z tysiącletnią historią

Wszystko w zasięgu ręki

Szkoła i przedszkole

1000 metrów

dla dzielnych rodziców mniejszych dzieci

Szkoły średnie

1200–1800 metrów

dla dzielnych rodziców większych dzieci

Centrum Zdrowia

3000 metrów

dla tych co ciągle chcą dać szansę NFZ

Katedra Włocławska

1300 metrów

dla miłośników późnego gotyku

Komunikacja miejska

700 metrów

dla miejskich podróżników

Rezerwat Kulin

500 metrów

dla miłośników dzikiej przyrody

Rzeka Wisła

300 metrów

dla miłośników wędkarstwa